Plānošanas programmatūra Geberit ProPlanner Pārdomāta plānošana ar Geberit
Geberit ProPlanner
Plānošanas programmatūra Geberit ProPlanner ir izsmalcināts rīks, ko piedāvā Geberit.
Geberit ProPlanner ir pielāgots projektētāju un sanitārtehnikas speciālistu vajadzībām, kuri paši rūpējas par vidēja lieluma un lielāku projektu plānošanu un resursu aprēķināšanu.
Plānošanas moduļi aptver visu sanitāro tehnoloģiju klāstu – sākot no dzeramā ūdens, notekūdeņu un montāžas sistēmām (Geberit Duofix/Geberit GIS) līdz jumta vakuuma noteku sistēmām (Geberit Pluvia).
Plānošanas moduļi
Montāžas sistēmas
Ātra, vienkārša un efektīva montāžas sistēmas plānošana:
- Montāžas sistēmu plānošana
- Geberit Duofix un Geberit GIS izstrādājumu piedāvājums
- Ātra plānošanas sistēmas uzstādīšana
- Ātra, vienkārša un efektīva montāžas sistēmas plānošana
- Eksportēšanas funkcija 3D detalizētās plānošanas modulī
- CAD eksportēšanas saskarne (Autodesk® RealDWG®)
- Atbilstoša jaunākajiem noteikumiem un iekļauj integrētos Geberit izstrādājumus
- Aprēķini saskaņā ar Geberit vadlīnijām un noteikumiem
- Automātiska materiāla, detaļu, piedāvājumu un veidnes sarakstu parādīšana
- Automātiska grīdas plāna, augstuma un montāžas rasējumu atveidošana.

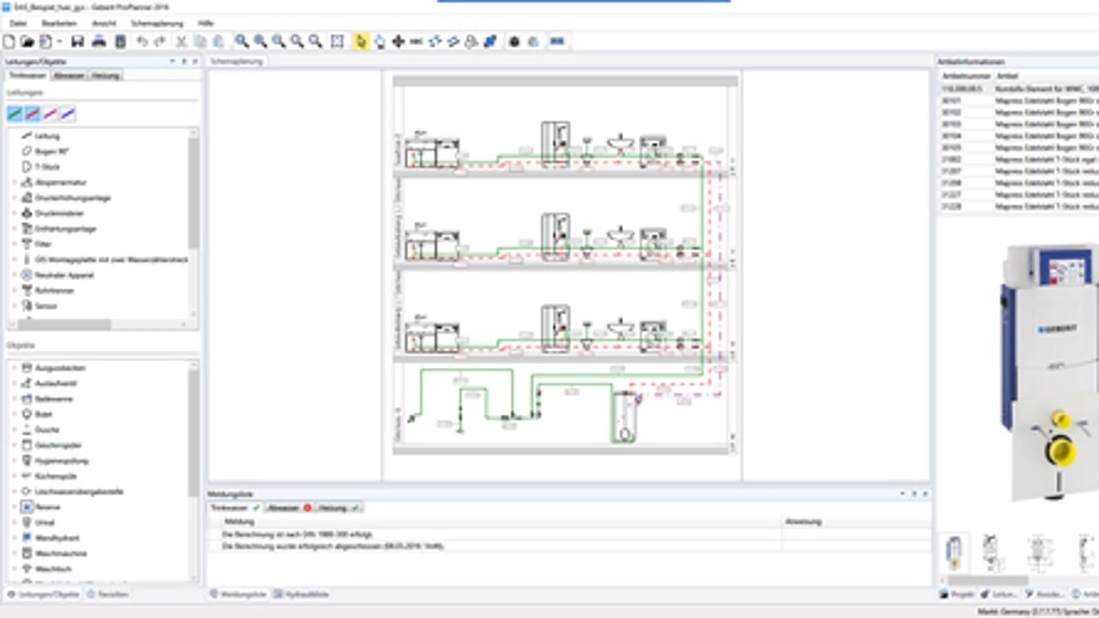
Shematiska plānošana
Detalizēta cauruļvadu sistēmas rasējumu plānošana:
- Dzeramā ūdens apgādes un kanalizācijas sistēmu plānošana
- Geberit Mepla, Geberit PushFit, Geberit Mapress nerūsējošā tērauda, Geberit Mapress vara, Geberit PE, Geberit Silent-PP, Geberit Silent-db20 un Geberit Silent-Pro izstrādājumu piedāvājums
- Shematiska plānošana
- Cauruļvadu sistēmas detalizēts rasējums
- CAD eksportēšanas saskarne (Autodesk® RealDWG®)
- Iekļauti jaunākie noteikumi, standarti un Geberit izstrādājumi
- Aprēķini atbilstoši katrā valstī noteiktajiem standartiem
- Automātiska materiālu, detaļu, hidraulisko un piedāvājumu sarakstu atveide
- Automātiska shematisku rasējumu atveide.

3D detālplānojums
Visaptveroša un detalizēta sanitāro telpu plānošana:
- Uzstādīšanas, dzeramā ūdens un kanalizācijas sistēmu plānošana
- Geberit Duofix, Geberit GIS, Geberit Mepla, Geberit PushFit, Geberit Mapress nerūsējošā tērauda, Geberit Mapress vara, Geberit PE, Geberit Silent-PP, Geberit Silent-db20 un Geberit Silent-Pro izstrādājumu piedāvājums
- Stāvu plānojums, augstuma plānošana un 3D vizualizācija
- Visaptveroša un detalizēta sanitāro telpu plānošana
- CAD imports un eksports (Autodesk® RealDWG®)
- Tieša plānošana, balstoties uz CAD plāniem
- Iekļauti jaunākie noteikumi, standarti un Geberit izstrādājumi
- Aprēķini saskaņā ar Geberit vadlīnijām un noteikumiem
- Automātiska materiāla, detaļu, piedāvājumu un veidnes sarakstu parādīšana
- Automātiska stāvu plāna, augstuma, 3D vizualizācijas un montāžas rasējumu atveide.

Jumta notekas
Optimāla hidrauliska, ekonomiska un uzticama plānošana:
- Geberit Pluvia vakuuma jumta noteksistēmu plānošana
- Geberit PE, Geberit Silent-db20 un Geberit Pluvia izstrādājumu klāsts
- Konstruēšana izometrijā
- Optimāla hidrauliska, ekonomiska un uzticama plānošana
- Importēšanas un eksportēšanas saskarne CAD (Autodesk® RealDWG®)
- Jumta platības aprēķins pēc CAD plāniem
- Iekļauti jaunākie noteikumi, standarti un Geberit izstrādājumi
- Aprēķins atbilstoši katrā valstī noteiktajiem standartiem vai Geberit noteikumiem
- Automātiska materiālu, hidraulisko un piedāvājumu sarakstu parādīšana
- Automātiska izometrisko rasējumu atveide.

Notekūdeņu novadīšana
Precīza un detalizēta lietus ūdens noteksistēmas plānošana:
- Noteksistēmu plānošana
- Geberit PE un Geberit Silent-db20 izstrādājumu piedāvājums
- Stāvu plānojums, augstuma plānošana un 3D vizualizācija
- Precīzi piemērota un detalizēta noteksistēmas plānošana
- Importēšanas un eksportēšanas saskarne CAD (Autodesk® RealDWG®)
- Tieša plānošana, balstoties uz CAD plāniem
- Atbilstoša jaunākajiem noteikumiem un iekļauj integrētos Geberit izstrādājumus
- Aprēķins pamatojas uz Šveices notekūdeņu novadīšanas standartu
- Automātiska materiāla, detaļu, piedāvājumu un veidnes sarakstu parādīšana
- Automātiska stāvu plāna, augstuma, 3D vizualizācijas un montāžas rasējumu atveide.

Programmatūras lejupielāde un licencēšana
Programmatūras licences
Reģistrējoties pēc programmatūras Geberit ProPlanner instalēšanas, saņemsiet licences atslēgu, ar ko bez maksas tiek aktivizēts montāžas sistēmu modulis.
Moduļu noteksistēmu shematiskais plānojums, detālplānojums 3D vizualizācijā, jumta notekas un notekūdeņu novadīšanas sagatavošana ir maksas. Pēc programmatūras apmācības kursa apmeklēšanas Geberit visiem apmācības dalībniekiem nodrošina plānošanas programmatūru bez maksas. Lai iegūtu papildinformāciju un licences, lūdzu, sazinieties ar Geberit vai savu Geberit pārdošanas konsultantu.
Izmantojot uzņēmuma licenci, jūs varat instalēt un aktivizēt programmatūru Geberit ProPlanner tik bieži, cik jūsu uzņēmuma vajadzībām nepieciešams. Apmācības dalībniekiem un visām izglītības iestādēm programmatūra ir pieejama bez maksas.
Programmatūras lejupielāde
Lejupielādējiet jaunāko plānošanas programmatūras Geberit ProPlanner programmas versiju.
Sistēmas prasības
Pirms plānošanas programmatūras lejupielādes, lūdzu, pārbaudiet nepieciešamās sistēmas prasības:
| Minimums | Ieteicamais | |
|---|---|---|
| Operētājsistēma | Windows 8.1 Windows 10 (no 1809) | Windows 10 (no 1809) |
| Procesors | Intel vai AMD daudzkodolu procesors | Intel vai AMD daudzkodolu procesors |
| Brīvpiekļuves atmiņa | 2 GB | 4 GB |
| Vieta cietajā diskā | 3 GB bez maksas | 6 GB bez maksas |
| Grafiskā karte | 64 MB, DirectX 9 | 256 MB, DirectX 9 |
| Displejs | 1280 pikseļu horizontālā izšķirtspēja, 900 pikseļu vertikālā izšķirtspēja | 1920 pikseļu horizontālā izšķirtspēja, 1080 pikseļu vertikālā izšķirtspēja |
| Ieteicams 96 dpi (displeja izmērs) | ||
| Tiešsaistes pakalpojumi | Nepieciešama piekļuve internetam Derīga e-pasta adrese | |
| Sistēmas komponenti | Tiek piegādāts un instalēts automātiski: - Microsoft .NET 4.7 - Microsoft DirectX 9 |
Programmatūras apmācība
Lai vēl efektīvāk varētu izmantot programmatūras Geberit ProPlanner moduļus, piedāvājam gan īpašus programmatūras apmācību seminārus, gan individuālus programmatūras apmācības kursus uz vietas jūsu reģionā.
Saites
Geberit ProPlanner lejupielāde: